Nájemní (a investiční) bydlení podle Trigemy
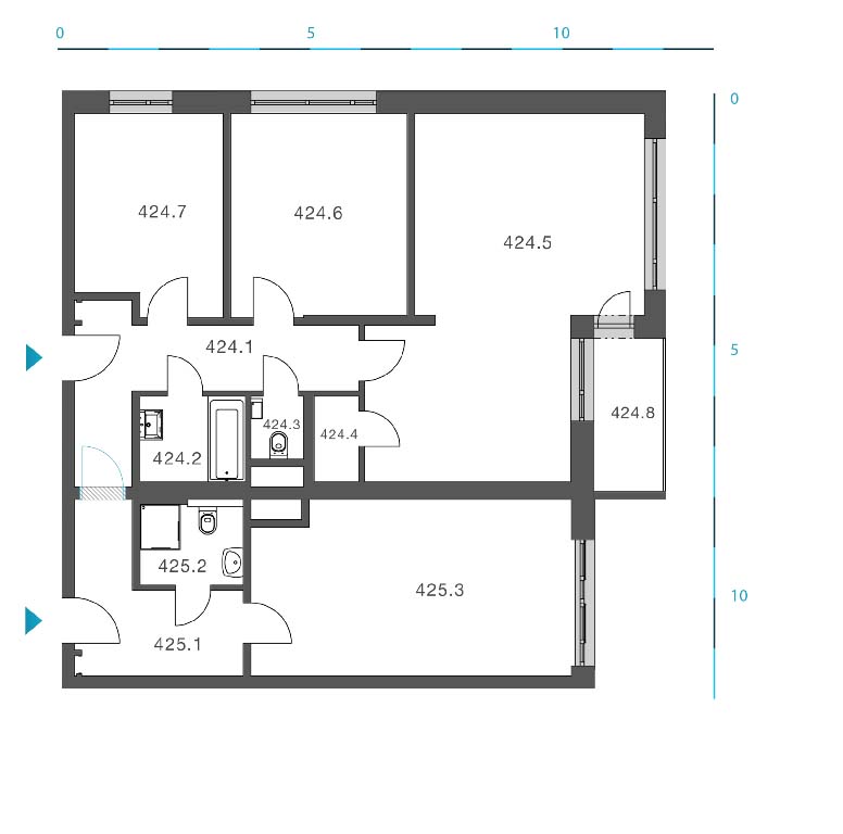
Koupíte větší byt o dispozicích 4 + kk. Bude-li na vás příliš velký nebo také drahý, oddělíte od něj malý byt 1 + kk a ten pronajmete. Pokud se vaše bytové potřeby v průběhu času změní, obě jednotky zase scelíte a tak dále ad infinitivum. Tento recept – nazvaný „modulové bydlení“ – pro pražský bytový trh chystá společnost Trigema. Ta se netradičními cestami ubírá poměrně často, staví například na komerční bázi vědecko-technický park, a už proto je tento investiční a nájemní koncept přinejmenším pozoruhodný.
„Snažíme se obohatit nabídku a vycházíme přitom z našich zkušeností,“ říká Marcel Soural, hlava holdingu Trigema, která se vedle developmentu zabývá také správou bytových domů. Modulové byty by podle něj mohly představovat jistou vzpruhu pro trh nájemního a také investičního bydlení, když zejména to druhé by mohlo zpřístupnit širšímu okruhu zákazníků. Vedle toho by mohlo napomoci větší finanční dostupnosti vlastnického bydlení. A v neposlední řadě může efektivně řešit problém měnících se nároků na bytový prostor. Jiné má mladá dvojice, zásadním způsobem se mění po narození dětí a obloukem se vrací do původní polohy po dosažení seniorského věku. Modulové byty Trigemy přitom jsou dobově sofistikovanější recyklací obecně známého konceptu, který se u nás objevil už před mnoha lety jako „dvougenerační“ byty, tj. bytové jednotky, které nabízely sice spojené, ale dispozičně oddělené jednotky dvě, a to včetně sociálního zázemí.
Realistické výpočty
Trigema samozřejmě moduly ušila na míru druhé
etapě svému projektu – 2 Barevné Letňany jich v dohledné době nabídne
zhruba padesátku. A z poměrů v lokalitě a parametrů projektu také
vycházejí finanční propočty. Nejsou nijak složité: koupě bytu 4+ kk
představuje investici ve výši 4,2 mil. Kč, podle předpokladu hrazené
prostřednictvím hypotečního úvěru. Při 15 % vlastních zdrojů a
umoření v termínu 25 let by to znamenalo měsíční splátku zhruba
17 000 Kč. Tuto zvláště pro mnohé mladé rodiny jistě nemalou, ne-li
prohibitivní sumu ovšem lze po oddělení bytu 1 + kk a jeho pronájmu dostat
do podstatně přijatelnější roviny. Malé byty se v Letňanech
pronajímají (alespoň soudě podle nabídky) za zhruba 9 000 za měsíc.
Výsledek je zjevný: hypotetický klient bydlí ve vlastním bytě 3 + kk,
který ho na splátkách úvěru stojí přibližně 8 000 Kč měsíčně
– jednoznačně snesitelná suma i pro klienty s průměrnými příjmy.
A přitom mu jeho bytové „portfolio“ umožňuje reagovat na už popsaný
změny vlastních bytových potřeb bez obvykle nevítaných faktorů, jako jsou
hledání nového bytu, změna „rodné“ lokality, stěhování atd. A je
třeba dodat, že co do dispozic, je možností více – na jednom poschodí
jsou situovány tři jednotky, což přináší možnost jednotlivé byty podle
přání budoucích majitelů „nakonfigurovat“.
Finančně-legislativní zádrhely
„Ochrana pronajímatelů je u nás stále velmi slabá a ani nový občanský zákoník na tom mnoho nezměnil!“ – konstatuje Jiří Pácal, ředitel společnosti CEH, která mj. pronajímá byty. Upozorňuje tak na velkou slabinu českého bytového trhu – neplatícího nájemníka lze těžko donutit k placení. Kauce v tomto ohledu představují jen částečné řešení, navíc vzhledem k silné nabídce se od nich nezřídka upouští, protože zvláště pro mladé páry, resp. singles, jinak bezproblémové nájemníky, mohou představovat velkou zátěž.
Kupodivu ale ve vztazích nájemník
– pronajímatel nejde jenom o „prvoplánové“ peníze. Takřka
nepřekonatelnou svízel pro pronajimatele představuje třeba nutnost ukončit
formálně nájemní vztah, když se nájemník z bytu odstěhuje – do takto
„opuštěného“ nájemního bytu majitel/pronajímatel podle platné
legislativy nesmí vstoupit. Takových problémových míst je v současné (a
zdá se, že i v budoucí) právní úpravě nájemních vztahů více. Na
druhou stranu ale J. Pácal přiznává, že k takovým kolizím nedochází
každý den: „Takto problematických nájemníků je podle mého odhadu
standardně bývá 5 %, v posledních době jich ovšem přibývá, možná je
to tak už kolem 7 – 8 %.“
Šéf CEH upozorňuje ještě na další a možná závažnější okolnost: „Představa, že jeden den nabídnete k pronájmu byt a druhý den máte seriozního nájemníka, je hluboce mylná. Každá změna nájemníka pronajímatele připraví tak o dva tři měsíční nájmy, nehledě na náklady, které pronajímatel musí při každé změně vynaložit na údržbu bytu.“ A podle J. Pácala navíc právě dnes sílí nájemní turistika. Počet nájemníků, kteří mění své nájmy nejméně jednou za rok roste – a tomu nakonec praxe sjednávání nájemních smluv právě na jeden rok nahrává.
Svízel ekonomicko-společenská
„Bydlení je pro nás drahé tak jako tak,“ říká třicátník Tomáš B., spole se svou partnerkou čerstvý majitel bytu ve Velkých Přílepech, a dodává: „Stejně jako jiní jsme začínali v nájmu. Po čase nás ale stejně jako jiné napadlo, že umořovat hypotéku na vlastní byt je přece jen finančně výhodnější a také psychicky přijatelnější než víceméně stejnou nebo jen o málo menší částku platit jako nájemné.“ Jeho slova jsou odrazem reálných ekonomických poměrů. Bydlení je u nás jednak celkově poměrně drahé, jednak trh, dnes už víceméně volný, zatím nevytvořil žádný ekonomický argument ve prospěch bydlení nájemního – jakožto bydlení levnějšího. Časy, kdy finanční poradci horečně kalkulovali snadné návody na výdělky, spočívající v koupi byt na hypotéku a jeho pronajímání za částky větší než hypoteční splátka, jsou sice už pryč, ale podstatnější finanční rozdíl mezi oběma modely stále neexistuje, jakkoli v dlouhodobém horizontu vlastní byt přijde dráž než pronájem.
Neviditelná změna bytové politiky
Tento ryze ekonomický kalkul umocňuje
přetrvávající podpora vlastnického bydlení ze strany státu. Ten sice už
před několika léty svou bytovou politiku přinejmenším slovně změnil a
dnes se naopak mluví o podpoře bydlení nájemního, ale tento dosti
radikální posun politických preferencí zatím nemá v realitě větší
reflexi. Jinak řečeno: komerční výstavba nájemních bytů je dodnes velmi
sporadická, výše nájmů (jakkoli je k cenám kupním srovnatelná) prostě
takovou investici neumožňuje.
Modulový koncept Trigemy jistě nepřinese na trh revoluci, ale mohl by představovat pozitivní impuls a každopádně bude příjemným zpestřením nabídky – tu v Praze podle serveru S-reality dnes představuje přes 12 000 bytů ke koupi a 11 000 k pronájmu. Možná ale v případě bytových modulů nepůjde o jediný příspěvek k rozvoji nájemního bydlení v metropoli. Při prezentaci posledních čísel o stavu pražského rezidenčního trhu M. Soural upozornil na budoucnost tzv. ležáků: „V Praze se dnes nabízí kolem 300 bytů, které byly dokončeny už před rokem 2009. Myslím, že tady jsou jen dvě možnosti: dramatická sleva nebo překlopení těchto kapacit do nájemního bydlení!“



Jagg.cz
Linkuj.cz
Google Bookmarks
Live bookmarks
Digg
Del.icio.us
MySpace
Facebook